Устройство плавного пуска INSTART SNI-220/280-06

INSTART
134700
189250,00
236550,00
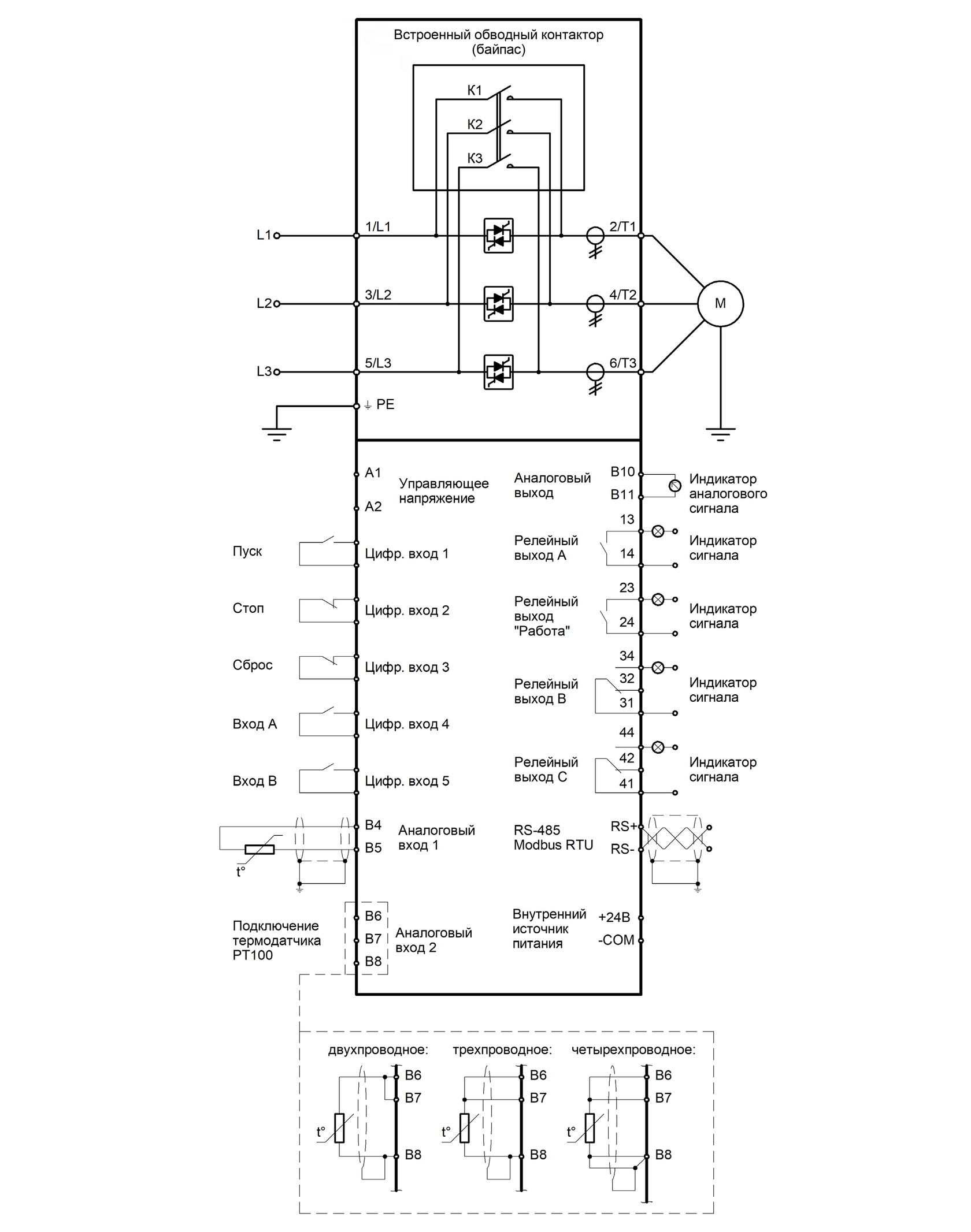
Устройства плавного пуска SNI – это новая серия в линейке INSTART со встроенным обводным контактором (байпас). Предназначены для плавного запуска асинхронных электродвигателей с короткозамкнутым ротором путем постепенного повышения напряжения на статоре двигателя. Устройства оснащены всеми необходимыми функциями для эффективного управления и защиты электродвигателей. Силовая часть устройства выполнена на тиристорах, установленных на каждой фазе, система управления – цифровая, микропроцессорная.

Мощность (общепром. режим G): 220 кВт

Ток (общепром. режим G): 280 А

Напряжение: 3 ~ 660 В ± 15%, 50/60 Гц

Серия: SNI

lwh: 445x287x615 mm

Weight: 32000 g

Схема подключения
Габаритные размеры
Документация